Major Clients +
Spaces & Buildings Completed +
Years Team experience
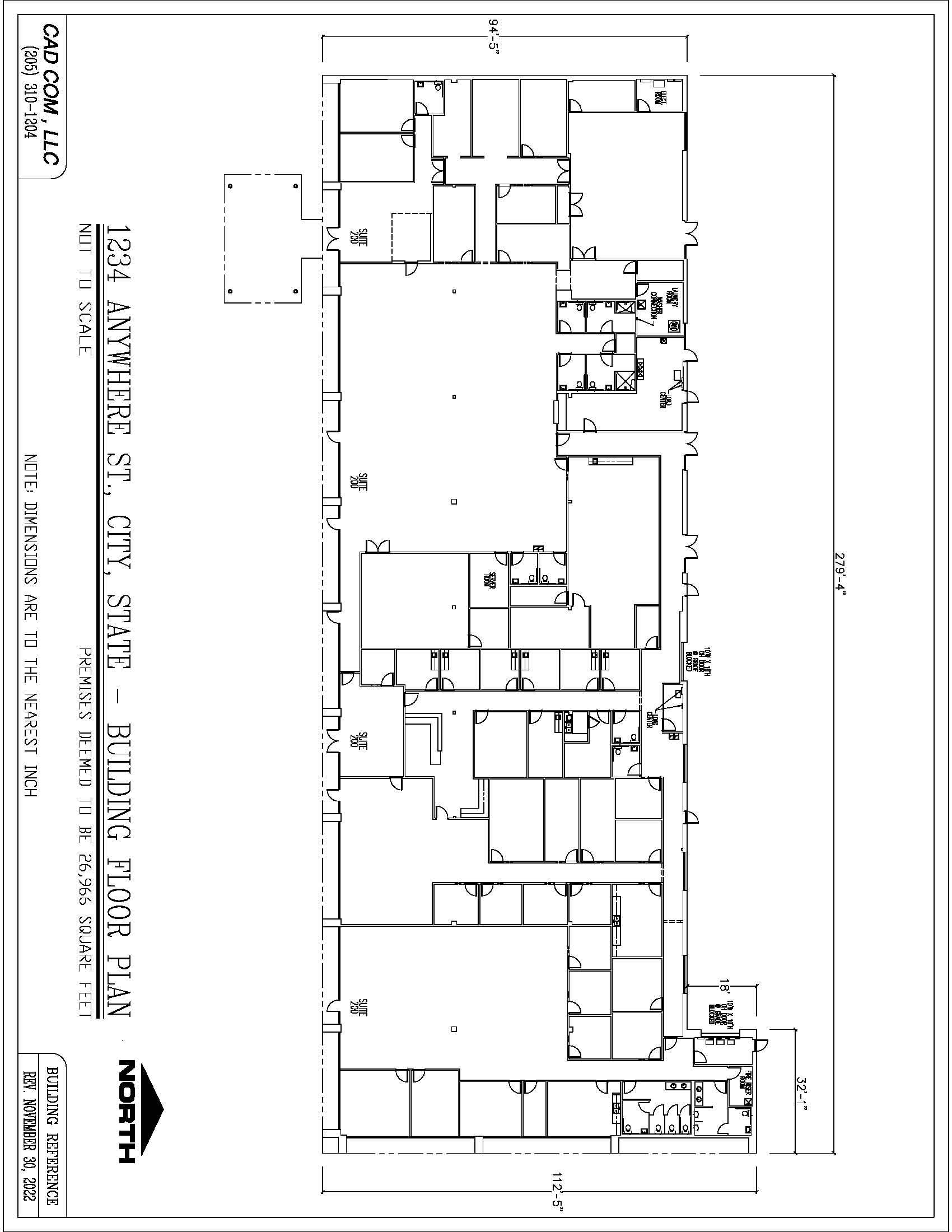
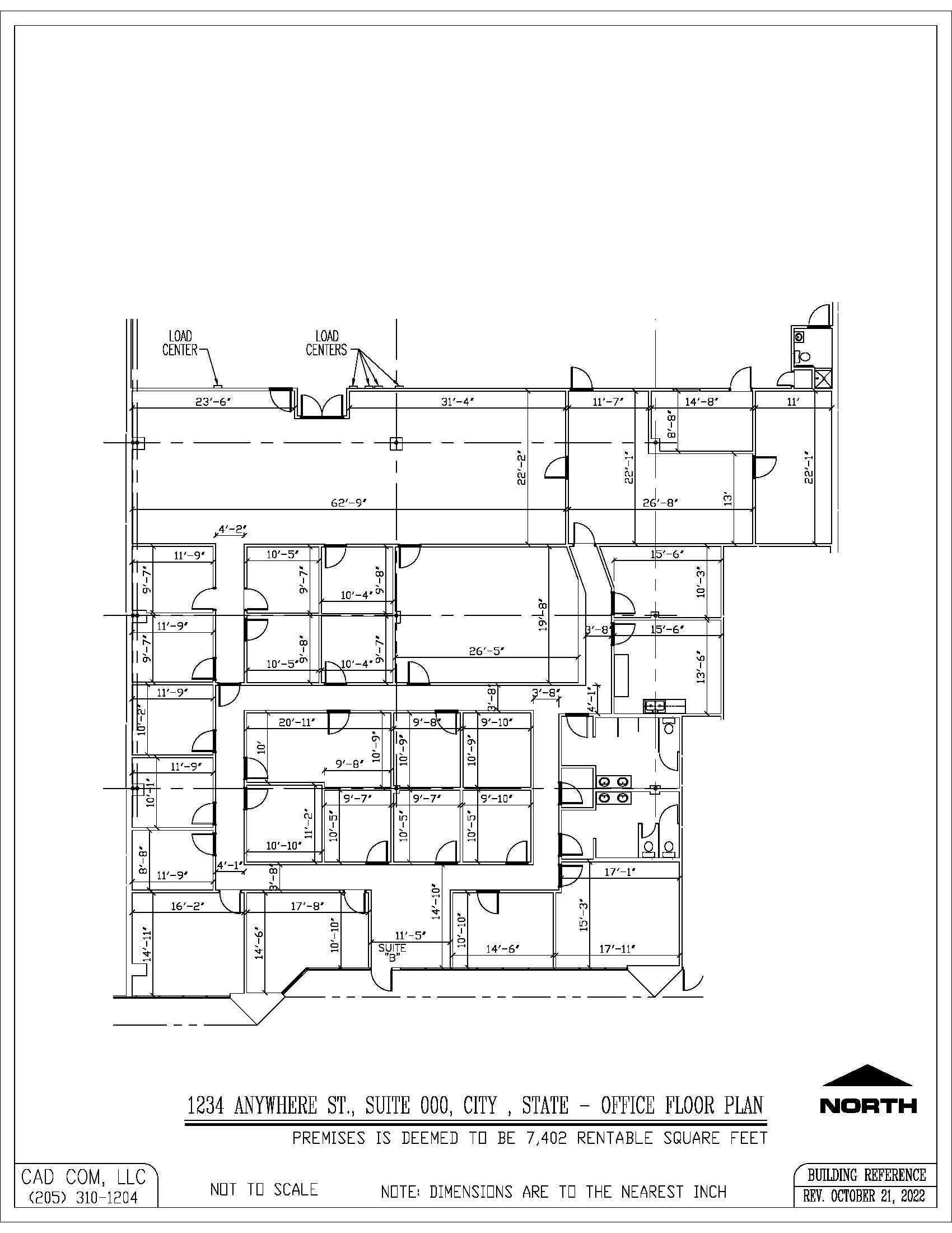
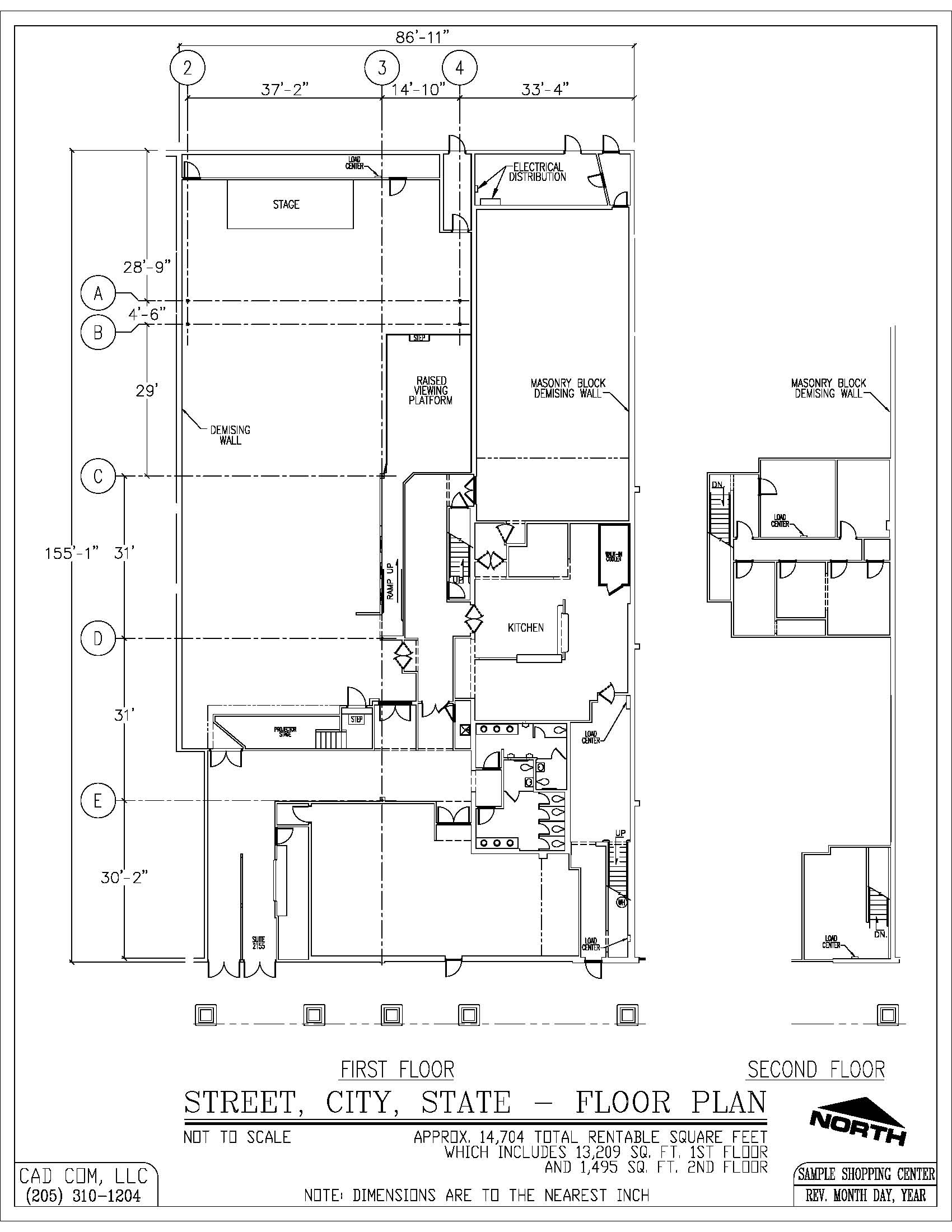
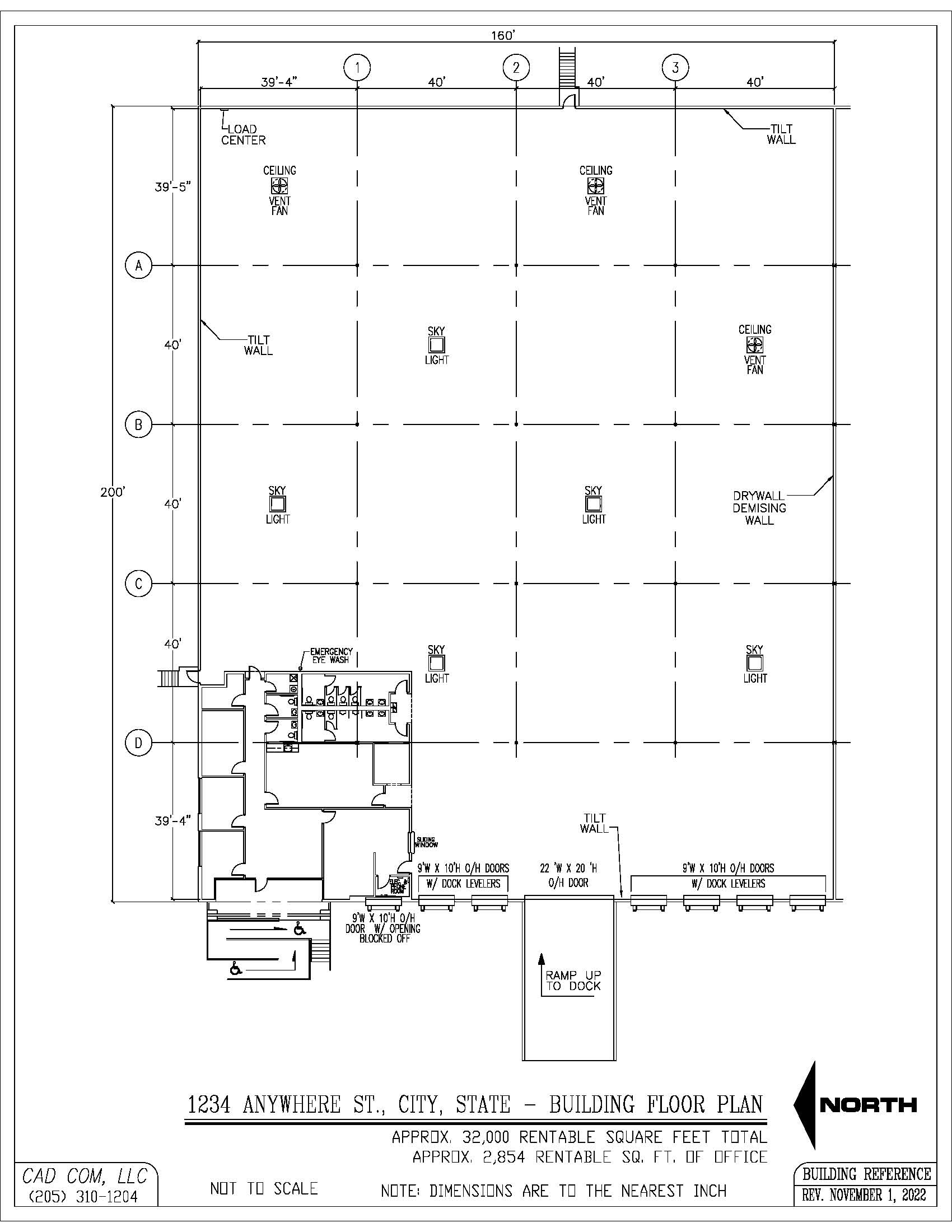
We deliver highly accurate, laser-measured 2D and 3D plans of the layout, dimensions and components of any existing building.
-
For over 20 years Cad Com has been a trusted provider of detailed as-built plans for existing commercial buildings. Cad Com's team has a combined 46 years of commercial property experience, with a unique combination of technical expertise and applied use of as-built plans in all aspects of building and portfolio management. The result is a client-centered approach backed by deep knowledge and best practices. Our work is covered by a $1,000,000 errors & omissions/liability policy.
-
Our plans are used across the full range of industry applications including remodeling, acquisition, disposition, leasing, marketing and conflict resolution. Cad Com’s work is a fundamental building block for managing commercial buildings, both physically and financially
Basic As-Built Plan Services
+ Field Measurement and detailed 2D drafting of existing
building plan/conditions
+ Square footage verificationf all:
-Walls, doors and windows
-Plumbing fixtures
-Electrical load centers
+ Labeling of floors and suite numbers
+ Deliverables:
-PDF e-files for all space depictions in 8 1/2 x 11 format
-E-files of all plans in AutoCAD format
-CAD e-files available within 3 business days after being
measured
-Printed copies of all documents available upon request
BOMA Analysis
+ Specifications and standards issued by the Building Owners and Managers Association are the globally accepted principles for defining and measuring commercial buildings.
+ Cad Com delivers BOMA-compliant measurement and analysis, for accurately sizing, allocating and categorizing commercial space in support of leasing, purchase, sale, design and conflict resolution.
Additional Services (quoted on per-job basis)
+ Speculative and test-fit space plans
+ Wall dimensioning
+ Reflected Ceiling plans
+ Location and depiction of any or all of:
-Lights
-HVAC
-Sprinklers
-Electrical/Data Outlets
-Wall Switches
+3D Building Representation (interior)
+3D Building Representation (exterior)
+Furniture or equipment delineation
+Plotting/printing - All sizes: black & white or
color
Team
Team

Hal Piper
Owner, PresidentTwenty-four years brokerage and property management of commercial property portfolios in the industrial, office and healthcare sectors, representing some of the nation’s premier institutional owners and developers. Brings a property owner’s perspective to deliver a client-focused, cost-effective service.
Contact
Contact Us
Website
www.cadcomplans.com
Email Us
info@cadcomplans.com
.
Call Us
(205) 310-1204
.
